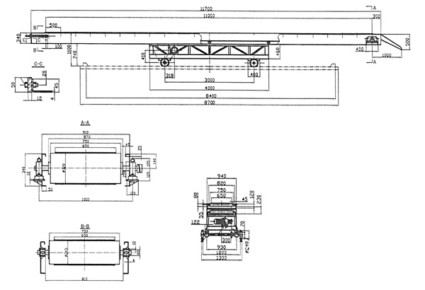
B650行走装车机
销售热线: (0)189 0627 1888 联系人: 胡先生 传真: 0513-8844 8088


| 类别 | 名称名称 | 规格 | 单位 | 备注 | |
| 输送带 | 输送物料 | 水泥袋 | |||
| 物品规格 | 670X420X130 | mm | |||
| 带宽 | 650 | mm | 4层胶带 | ||
| 带速 | 1 | m/s | |||
| 输送能力 | 100 | t/h | |||
| 全机水平长度 | 11000 | mm | |||
| 电动滚筒 | TDY323 | 功率1.5KW | |||
| 小车 | 速度 | 0.27 | m/s | ||
| 最大轮压 | 20 | KN | |||
| 传动 | 摆线针轮减速机 | 型号 | BWY18-59 | ||
| 速比 | 59 | ||||
| 功率 | 1.1 | kw | |||
| 大链轮 | 齿数 | 17 P-31.75 | d=172.55 | ||
| 小链轮 | 齿数 | 12 P-31.75 | d=122.6 | ||
| 链条 | 型号 | 20A P-31.75 | |||
| 行程开关 | LX2-121A | ||||
上一页:[装车机]
下一页:变幅装车机
关键字:B650行走装车机
产品别名:
相关产品:B650行走装车机















